House in Ohno / Airhouse Design Office
日本Airhouse Design Office給gooood分享了這座由他們設計的,位于日本岐阜 Ohno某果園里的木結構私人小住宅。

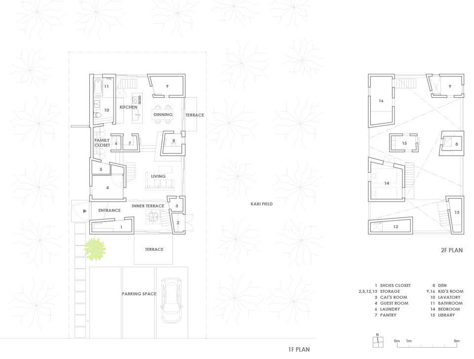
果園內的樹木成為了住宅的天然隱私屏障與自然風景。身處其間的住宅構架開放,可以簡單理解為7個結構體支撐起一個巨大的屋頂,這七個結構體有相當的厚度,所有的私人空間比如衛(wèi)生間和臥室都位于其中,而7個結構體之間,屋頂下方的自由空間,是住宅的公共空間—客廳,餐廳,廚房。



對自然開放,并受到果樹圍繞的室內公共空間讓人感到開闊而放松。公共空間的室內高度有兩層層高的尺度,為了利用結構體的上層空間,每個都有專用樓梯到達上層,其中四個樓梯放置在公共空間中,還有三個爬梯分別放置在相對應的結構體自身中。
果樹掩映間,四季常變遷,樂居享不停。





















